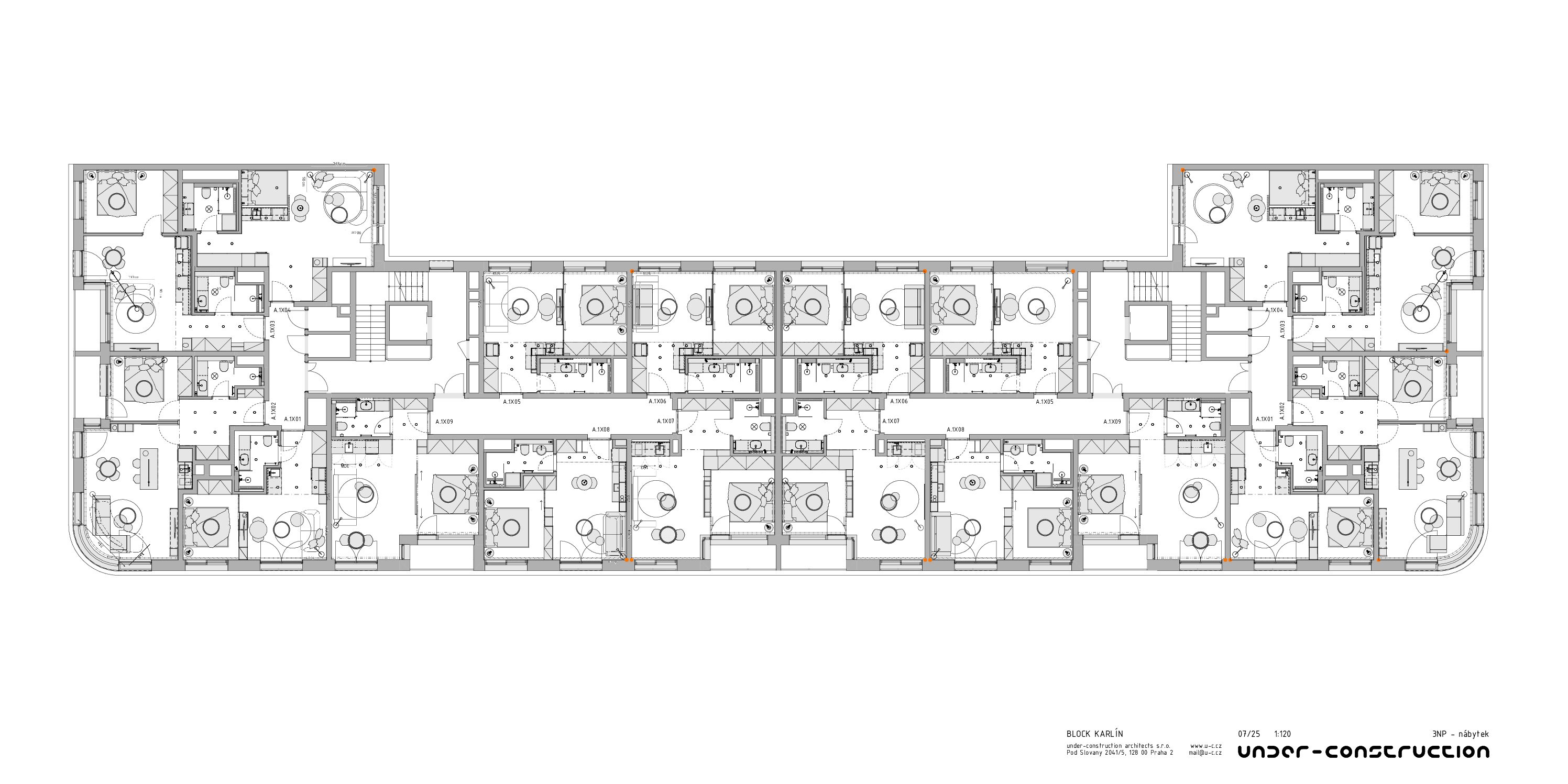
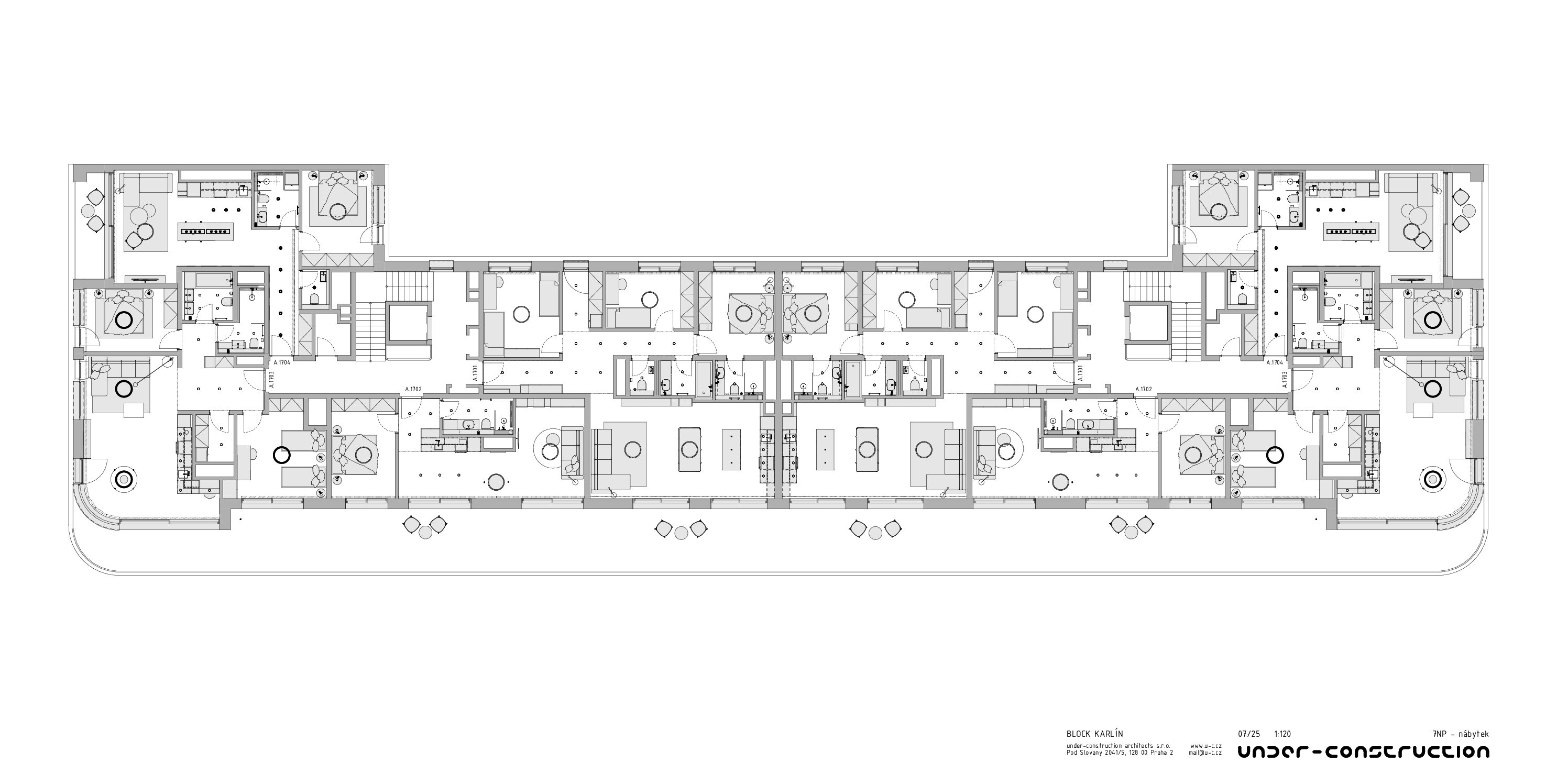
Block Karlín – 98 bytů

Autor: Erika Vašutová, Vladimír Vašut
Spolupráce: Magda Palečková, Evangelos Paxinos
Adresa: Sokolovská, Praha 8 – Karlín, Česká republika
Počet nájemních bytů: 98
Projekt: 2025

www: blockliving.cz

Pro bytový projekt Block Karlín jsme byli vyzváni k návrhu interiéru včetně úpravy dispozici pro 98 plně vybavených nájemních bytů. Cílem bylo vytvořit pestrou nabídku domovů, ve které si každý může najít ten „svůj“ – byt, kde se bude cítit přirozeně a komfortně. Hravou barevnost a charakter exteriérů jsme vědomě přenesli také do interiérů. Díky tomu vznikla škála různých atmosfér, které dávají jednotlivým bytům osobitý výraz a identitu. Pracovali jsme s barvami, materiály i detaily tak, aby interiéry působily současně, nadčasově a příjemně pro každodenní život. Projekt nabízí byty v dispozicích od 1+kk až po 4+kk, navržené s důrazem na funkčnost, efektivní využití prostoru a kvalitu bydlení v nájemním standardu.